Clinics By Design

Design

Clinics by Design are proud to offer a comprehensive in-house design service to help bring your healthcare clinic to life.

 

Design, including building and interior design, can play a pivotal role in the success of your future practice. Staff expect a functional and appealing workplace, while patients and members of the public often value looks and aesthetics.

 

Our goal is to work alongside our clients to ensure we share the same vision. The design phase focuses on creating a layout that streamlines patient care, optimises staff productivity and enhances patient experiences.

 

It’s a finely tuned art to get the design phase correct. But with over 40 years’ experience, our team are experts in designing clinical spaces that are warm, calming and comfortable for your staff and patients. Whether it’s fitting out an existing practice or designing and constructing a new clinic, our team is proud to offer an end-to-end service for businesses in the healthcare space.


At Clinics by Design we specialise in healthcare design for:

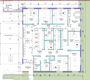
Dr Face Clinic - Clinics By Design

It’s all about the process!

Our Consultant and Designer meet with you to discuss your business fitout needs and get a clear perspective on your vision. We will discuss your requirements and what challenges you are currently facing with your workspace; whether it’s a size issue, a functionality improvement or simply a workspace update, we will work with you to find the most suitable commercial fitout solution for your requirements and budget.

Design Phase

Proposal

Site Commencement
Construction

Design

waiting area - Clinics by Design

Clinics by Design are proud to offer a comprehensive in-house design service to help bring your healthcare clinic to life.

 

Design, including building and interior design, can play a pivotal role in the success of your future practice. Staff expect a functional and appealing workplace, while patients and members of the public often value looks and aesthetics.

 

Our goal is to work alongside our clients to ensure we share the same vision. The design phase focuses on creating a layout that streamlines patient care, optimises staff productivity and enhances patient experiences.

 

It’s a finely tuned art to get the design phase correct. But with over 40 years’ experience, our team are experts in designing clinical spaces that are warm, calming and comfortable for your staff and patients. Whether it’s fitting out an existing practice or designing and constructing a new clinic, our team is proud to offer an end-to-end service for businesses in the healthcare space.


At Clinics by Design we specialise in healthcare design for:

We know you

We understand that every healthcare practice is unique and that when it comes to designing a dental clinic, medical centre, allied health space or veterinary practice, there’s no one-size fits all solution.

 

That’s why we work with you to bring your vision to life. Whether it’s a dental clinic, medical centre, allied healthcare space or veterinary practice design, the needs and desired aesthetic will differ.

Our experts know that the requirements for a dental clinic design are fundamentally different to those of a veterinary practice design, likewise for medical centres and allied healthcare designs – and they design accordingly.

 

With our tailored approach, we design spaces that are bespoke to your needs, and combine medical clinic design, interior design and construction. Our designers take a forward thinking approach and consider your long-term goals to ensure your clinic can accommodate growth and your patients’ future needs. And our dedicated team is here to help and can offer expert advice throughout this process.

Our promise to you

When you work with Clinics by Design, you get more than a contract – rather a partnership to help design your dream clinic.

 

Our reputation for designing high-quality medical, veterinary and allied healthcare centre designs is something we’ve built up over decades – and it’s something we take extremely seriously.


Our promise to you is to design a space that honours your vision, and your brand or business’s needs. We’re passionate about working with our clients to design a space that fits their exact needs, on a case-by-case basis.

 

Additionally, our flexible approach enables our team to accommodate projects of any scale, and provide bespoke solutions for your space. And our transparent process will ensure you are updated with your project’s progress and alerted to any issues in a timely manner.

It’s all about the process!

Our tried and tested four-step process ensures you feel confident and involved in the healthcare construction or fitout process. It includes:

Consultation

Our process begins with an initial consultation between you, one of our Project Coordinators and our Director. This is where you can detail your vision, and talk about any specific requirements your clinic design may need. It’s also a good idea to discuss any issues that may arise, or other considerations that may impact your future clinic.

Colour and Product Choices

Next, the fun begins. In this stage, you’ll get to discuss a colour palette for your new medical, dental, veterinary or allied health practice. Our team of specialists can advise you on the latest trends and help ensure your space is designed with your brand (and its colours) in mind. Our in-house library holds a plethora of samples to view.  From flooring samples to furniture materials and finishes, our design team will help guide you on current trends and styles that may suit your space. And if we don’t have exactly what you’re after, we will ensure a sample can be sourced and sent directly to our team in no time. 

Design and Layout

In the design phase, we’ll discuss the physical layout and the details of the medical centre design – from the location of the entryway, room sizes and patient flow.

 

Using cutting-edge design technology, our team will develop a plan for your clinical space. This will help you visualise each area and determine the effectiveness of your clinic or practice.

 

We’ll also start to map out logistics, and ensure your project can be completed to meet council regulations, including disabled access and town planning requirements.  This stage is fundamental to ensure the project is achievable and that you and our team are on the same page.

Sign Off and Commencement

And finally, when everyone is in agreement with the design and the plans have been signed off, we’ll start bringing your vision to life – for real. Our design, fitout and construction teams work together to ensure your design is completed as expected, with additional considerations including council permits, town planning and Disability Discrimination Act requirements factored in.

When you work with Clinics by Design, you get a trusted business that is qualified in all areas of healthcare design – including dental practice design, veterinary practice designs, medical design, vet design and allied healthcare design.

Our in-house design team set Clinics by Design apart – their precision and attention to detail will guarantee you love your new space as much as we do. 

We ensure your investment in the future of your business will be the best thing you do. Get in contact today.

Our Partners​

Over 80 percent of our business comes via referral from previous clients. By choosing Clinics by Design, you’re guaranteed expertise, attention to detail and a vet clinic fitout that embodies innovation, efficiency and a superior fury patient experience.

Check out our previous allied healthcare clinic construction and fitout work below: